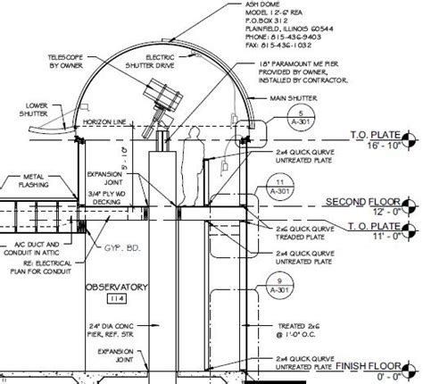
Video: I build an DIY plywood observatory dome
Video oleh Maciej D.
Video oleh Maciej D.
Observatory Dome Plans adalah layanan digital yang dirancang untuk membantu pengguna mendapatkan informasi lengkap dan terpercaya. Anda dapat menggunakannya dengan mengunjungi situs resmi dan mengikuti panduan yang tersedia.
Ya, Observatory Dome Plans dapat diakses secara gratis oleh semua pengguna. Tidak ada biaya tersembunyi atau langganan yang diperlukan untuk menggunakan layanan dasar yang disediakan.
Untuk mendapatkan informasi terbaru tentang Observatory Dome Plans, Anda bisa mengunjungi halaman resmi kami secara berkala. Kami selalu memperbarui konten dengan informasi terkini dan terpercaya.